Vente en ligne direct usine équipement de l'habitat etérieur et intérieur
NATURAWOOD-ECOTHEC
Fabrication structure ossature bois Résidentielles - Hébergements touristiques et loisirs 
Distribution direct usine produits pour l'aménagement de l'habitat extérieur et intérieur

Siège social: 12, rue de la Part Dieu - 69003 Lyon 
Agences commerciales. 74000 Annecy - 20000 Corse
Tél: +33 (0)6 69 36 09 36  - Mail: contact@natura-wood.com

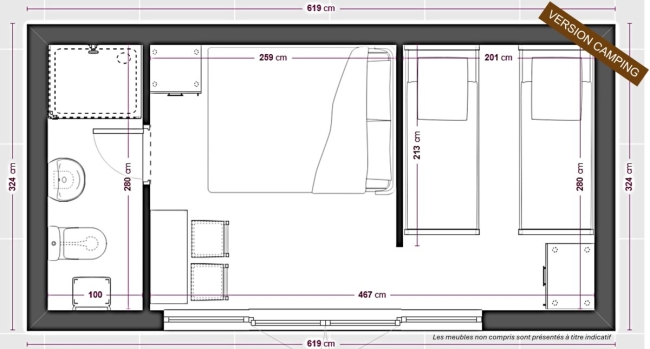
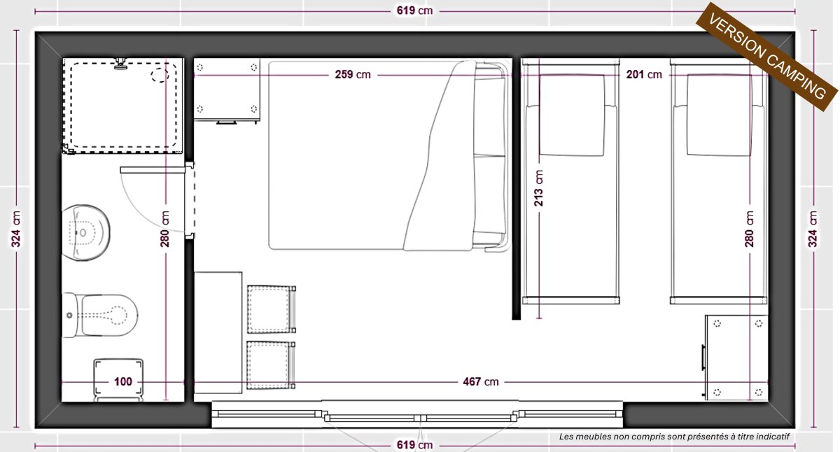
EcoLodge 20 m2 - Version camping

L'écoLodge est un logement résidentiel, touristique et loisirs de haut de gamme concu pour les plus exigeants.

Le prix comprends

Comparer un prix c'est bien...Mais comparer son contenu, c'est mieux !

37,620.00 38,930.00

Recherche