
Bonjour, et bienvenus sur notre site
Nous vous souhaitons une excellente visite
en espérant que nos produits répondrons
à votre recherche
Gestion fabrication - Conception et devis
Tél: +33 (0)6 69 36 09 36
contact@natura-wood.com
contact@natura-wood.com
Etude de faisabilité – Recherche foncière
Tél +33 (0)6 60 17 38 78 gillesfoucher74@gmail.com
Maitrise d'œuvre - Construction
3 maitres d'œuvre
Rhône Alpes - PACA /Corse/Suisse
Rhône Alpes - PACA /Corse/Suisse
Usine de production - Fabrication
Structures résidentielles
et touristiques
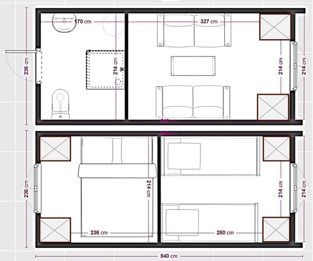
EcoPod Premium DUO - 2X5,40X2,36 m - 3 versions: EP1 - EP2 - EP3
Un hébergement haut de gamme conçu pour les plus exigeants,
en version: STUDIO - CAMPING - HÔTEL
____ Sans permis de construire ___

Découvrez l'écoPod DUO - EP1
Un concept exclusif développé au sein de notre service technique
La version EPD1, regroupe tous les éléments de confort pour 4 personnes. Idéal pour les professionnels du tourisme et pour accueillir famille et amis
Concept technique haut de gamme avec isolation 4 saisons, comprenant une structure double parois en madrier massif de 42 mm + Ossature bois isolée laine de roche de 50 mm
- Chambres individuelle grand lit 160 cm
- Chambre individuelle 2 lits de 80 cm
- Salle de bains
- Cuisine équipée
- Coin repas
- Etagères de rangements
Livré totalement prémonté en usine, aménagé prêt à habiter
Tous les équipements sont fonctionnels et testés
Il reste à la charge du client le support au sol et les réseaux extérieurs de raccordements, eau, électricité et eau usées
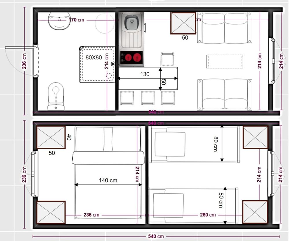
Version EP2
Un concept exclusif développé au sein de notre service technique
La version EPD2, sans la cuisine, regroupe tous les éléments de confort pour 4 personnes. Idéal pour les professionnels du tourisme et pour accueillir famille et amis
Concept technique haut de gamme avec isolation 4 saisons, comprenant une structure double parois en madrier massif de 42 mm + Ossature bois isolée laine de roche de 50 mm
La version EPD2, sans la cuisine, regroupe tous les éléments de confort pour 4 personnes. Idéal pour les professionnels du tourisme et pour accueillir famille et amis
Concept technique haut de gamme avec isolation 4 saisons, comprenant une structure double parois en madrier massif de 42 mm + Ossature bois isolée laine de roche de 50 mm
- Chambres individuelle grand lit 160 cm
- Chambre individuelle 2 lits de 80 cm
- Salle de bains
- Espace salon (Meubles non compris)
- Etagères de rangements
Livré totalement prémonté en usine, aménagé prêt à habiter
Tous les équipements sont fonctionnels et testés
Il reste à la charge du client le support au sol et les réseaux extérieurs de raccordements, eau, électricité et eau usées
Tous les équipements sont fonctionnels et testés
Il reste à la charge du client le support au sol et les réseaux extérieurs de raccordements, eau, électricité et eau usées

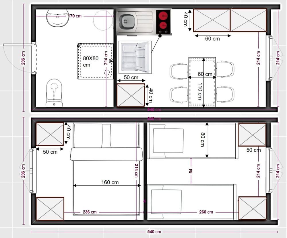
Version EP3
Un concept exclusif développé au sein de notre service technique
La version EPD3, est la plus complète. Elle regroupe tous les éléments de confort pour 4 personnes. Idéal pour les professionnels du tourisme et pour accueillir famille et amis
Concept technique haut de gamme avec isolation 4 saisons, comprenant une structure double parois en madrier massif de 42 mm + Ossature bois isolée laine de roche de 50 mm
Il reste à la charge du client le support au sol et les réseaux extérieurs de raccordements, eau, électricité et eau usées
La version EPD3, est la plus complète. Elle regroupe tous les éléments de confort pour 4 personnes. Idéal pour les professionnels du tourisme et pour accueillir famille et amis
Concept technique haut de gamme avec isolation 4 saisons, comprenant une structure double parois en madrier massif de 42 mm + Ossature bois isolée laine de roche de 50 mm
- Chambres individuelle grand lit 160 cm
- Chambre individuelle 2 lits de 80 cm
- Salle de bains
- Cuisine équipée
- Coin repas
- Espace salon (Meubles non compris)
- Etagères de rangements
Livré totalement prémonté en usine, aménagé prêt à habiter
Tous les équipements sont fonctionnels et testés
Tous les équipements sont fonctionnels et testés
Il reste à la charge du client le support au sol et les réseaux extérieurs de raccordements, eau, électricité et eau usées
Façades
Les façades fonctionnelles sont pourvues de doubles portes et porte simple
Espace chambres:
2 portes double fenêtres avec verre sécurit 6 mm
Espaces bains et vie:
1 porte double fenêtres avec verre sécurit 6 mm
1 porte pleine (Bains)

Protection du bois et couleur toiture
Vous recevrez votre EcoPod, protégé par deux couches de lasure réalisées en usine, 4 couleurs au choix.
Cette option d'une valeur de 499,00 € par unité est offerte.
Choisissez la couleur de votre couverture , noir, vert ou bordeaux
Support au sol
La mise en place de votre EcoPod nécessite un support au sol solide et durable. Nous avons étudié ce sujet à travers les différentes possibilités et avons conclus que la solution proposée regroupe le plus d'avantages. Mais la décision vous appartient...
Cette solution de support est la plus facile à mettre en œuvre, car elle ne nécessite pas de compétences particulières. Par ailleurs, elle respecte la norme « DTU » de distance entre le sol et le plancher qui ne doit pas être inférieure à 20 cm;
L’utilisation de solives traitées par autoclaves, « classe » 4 est impérative pour une longue vie à votre EcoPod. Il est facile de les trouver chez les marchands de matériaux localement.
Vous devez intercaler une bande étanche « Compribande » entre le plot béton et la solive bois. Il est préférable de poser des plots de formes carrés, pour plus de facilité de fixation de la solive
Dans l'image suivante, nous vous donnons tous les détails de mise en place
Notre service technique, vous accompagne, est à votre disposition, et répond à vos questions en temps réel, 7/7 jours. N'hésitez pas à le contacter si besoin.

Mise en place de vos plots béton et des solives
.
- S’assurer que le sol est solide et ferme, et ne soit pas composé d’une terre de remblai. Il est conseillé de faire réaliser une étude de sol par un professionnel
- Décaper la terre végétale sur une épaisseur minium de 15 cm, en créant une plateforme la plus plate et de niveau possible et dépassant de chaque coté des dimensions du lodges de 20 cm minimum
- Poser les plots béton à la profondeur correspondant à la nature du sol et en les faisant dépasser de 5 cm du sol finit, au dessus du gravier. Ils doivent être parfaitement de niveau entre eux, et aux dimensions d'écartement indiquées sur le plan.
- Poser un film géotextile sur la terre
- Poser un lit de gravier d’une épaisseur de 15 cm sur le géotextile. Tasser le plus possible
- Poser les solives sur les plots béton et les fixer suivant image ci-dessus.
- D’autres solutions de support au sol sont possibles, comme la dalle ou les longrines béton. Dans tous les cas le support doit: être parfaitement plat et de niveau. Pour une dalle, Il est nécessaire de respecter un retrait de 3 à 4 cm par rapport aux dimensions extérieures de l'EcoPod, afin que l’eau ne s’infiltre pas dessous.
- Votre support doit être terminé au minimum 1 mois avant la mise en place
Transport et déchargement
Le transport est offert sur le continent Français, jusqu'à l'accès possible du camion
- Supplément maritime pour la Corse
- Supplément routier pour la Suisse et autre pays
Le déchargement et la mise en place avec chariot élévateur ou grue sera calculé suivant les conditions d'accès et distance entre le camion de livraison et le lieu final d'installation.
- Supplément maritime pour la Corse
- Supplément routier pour la Suisse et autre pays
Le déchargement et la mise en place avec chariot élévateur ou grue sera calculé suivant les conditions d'accès et distance entre le camion de livraison et le lieu final d'installation.
En fonction de la distance le type de grue varie en même temps que le prix. Il donc impossible de prévoir un prix, sans posséder toutes les informations. Un devis sera transmis après avoir prix connaissance des informations d'accès
Mise en place sur les supports
La mise en place nécessite deux personnes pour guider le POD et le poser sur son support, en plus du chauffeur du camion qui conduit la grue.
Le déchargement et mise en place avec un chariot élévateur sur roue, tel que sur la photo ci-dessus, est la meilleure solution et la moins cher. Cela nécessite un accès roulant pour le chariot jusqu’à l’emplacement du POD
Grutage
Dans le cas d’impossibilité d’accès roulant, la grue reste l’unique solution. Il est possible de franchir une distance de plus 40 m avec une grue de forte capacité
Support au sol:
Le support au sol, ainsi que les réseaux eau, électricité et évacuation des eaux usées, doivent être terminés au minimum 1 mois avant la mise en place
Le support au sol, ainsi que les réseaux eau, électricité et évacuation des eaux usées, doivent être terminés au minimum 1 mois avant la mise en place
Dans le cas ou aucune solution de mise en place par charriot élévateur ou grue n'est possible, consultez notre service technique qui pourra vous proposer une solution d'EcoPod à monter sur place
Délais de livraison:
Nos délais sont actuellement de 9 à 10 semaines
Corse et Suisse:
Pour la Corse, la Suisse et autres pays Européen, un devis spécifique de transport sera effectué, suivant la destination