
Spécialiste de l'hébergements touristiques et loisirs Produits pour l'aménagement de l'habitat extérieur
Siège social: 12, rue de la Part Dieu - 69003 Lyon - Agences commerciales. 74000 Annecy - 20000 Corse - 1205 Genève
EcoLodge 20 m2 - Référence: ECL20 / ECL21 / ECL22
Un hébergement haut de gamme conçu pour les plus exigeants,
en version: STUDIO - CAMPING - HÔTEL
____ Sans permis de construire ___

Détails des éléments livrés:

ECL20Version studio
MENUISERIES EXTERIEURES:
(Existe en version hôtel et camping
- Fenêtres PVC couleur blanc
- Option gris anthracite 7016
- Double porte fenêtre 1610X1920 mm
- Deux baies fixes 850X1920 mm
- Vitrage isolant 4/16/4
Les meubles sont non compris, et présentés à titre indicatifs
(Sauf cuisine)
Montage et installation
- Par les partenaires du groupement d'entreprises
(Existe en version hôtel et camping

ECL20 - Version studio
PLANCHER:
- Lambourdes support
- Lames bois 18 m
- Isolation 50 mm
- Parquet flottant stratifié
- Madrier massif horizontal 34 mm .
- Membrane respirante
- Ossature et isolation 50 mm
- Membrane pare pluie
- Liteaux verticaux et horizontaux
- Bardage 19/20 mm extérieur
- Cloisons et porte salle de bains
- Par les partenaires du groupement d'entreprises
Les meubles sont non compris, et présentés à titre indicatifs
(Sauf cuisine)
(Sauf cuisine)

ECL20 - Version studio
Electricité et chauffage:
- 1 allumage 2 spots
- 2 allumages 1 spot
- 1 allumage extérieur
- 6 prises 16A
- 1 prise extérieure
- Tableau électrique général norme C15100
- Disjoncteurs et 30mA
- Mise à la terre
- Parafoudre
- Hotte
- 2 Extracteurs air (Bains et cuisine) commandé par inter lumière
- 2 radiateurs
- Chauffe- eau
- Unité intérieure et groupe clim
- Radiateur électrique rayonnant 1500 W.
- Radiateur électrique soufflant 1000 W.
- 2 Extracteurs air commandé par inter lumière
- Par les partenaires du groupement d'entreprises

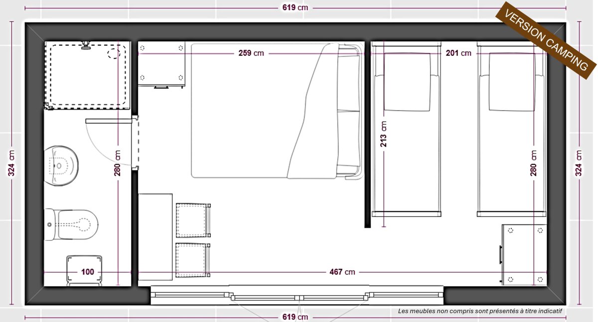
ECL21 -Version camping
- Aménagement identique à la version studio
- Sans la cuisine
- Cloison supplémentaire entre les deux chambres
- Les meubles sont non compris et présentés à titre indicatif

ECL22 - Version hôtel
- Aménagement identique à la version studio
- Sans la cuisine
- Les meubles sont non compris et présentés à titre indicatif

Salle de bains:
- Cabine de douche 110x80
- Receveur en acrylique renforcé blanc
- Porte coulissante réversible en verre trempé
- Structure en aluminium laqué gris métal
- 3 bandes dépolies grises sérigraphiées
- Fond en verre trempé 5mm gris
- Toit en verre blanc
- Mitigeur mécanique
- Douche de tête pluie chromée
- Douchette à main anticalcaire - Flexible
- Encadrement de robinetterie inox poli miroir
- Poignée chromée
- Bonde grand débit 90mm
- Tablette en verre
- Fermeture magnétique - Montage sans silicone
- Attestation de conformité sanitaire
- Vasque sur meuble 60X45 cm
- •Meuble à suspendre - Caisson livré monté
- Mélaminé décor chêne clair (ép. 16 mm)
- 2 tiroirs à fermeture progressive (soft-close)
- Vasque en céramique blanche
- Miroir orientable à 90°
- Double bandeau LED intégré 3W
- Mitigeur et siphon
- WC et réservoir au sol
- Robinet d'arrêt chromé
- Abattant double couvercle avec frein de chute
- Montage et installation
- Par les partenaires du groupement d'entreprises

Eau chaude
- Le chauffe-eau électrique Atlantic Vertigo Access 100 d'une capacité de 80 litres est la solution idéale pour ceux qui recherchent un système de chauffage de l'eau compact,
- efficace et extrêmement polyvalent. Grâce à son design ultra-plat (<30 cm de profondeur) et à la possibilité d'une installation verticale ou horizontale.
- Doté de la classe énergétique B et de la technologie Smart Control, il optimise la consommation, en réduisant le gaspillage d'énergie et en garantissant un grand confort. •Protection avancée contre la corrosion, grâce à la technologie O'pro et à la double anode en magnésium.
- Émaillage Diamond Quality, pour une plus grande résistance et durabilité
- Résistance électrique en cuivre avec anode en magnésium
- Système automatique anti-légionelles, pour garantir une hygiène maximale de l'eau à tout moment.
- Thermostat électronique, pour un contrôle précis de la température.
- Soupape de sécurité 8 bars et joint diélectrique fournis en standard.
- Bride d'inspection, pour faciliter l'entretien.
- Indicateur "Shower Ready", pour savoir quand l'eau a atteint la température idéale.
- Câble et prise fournis de série, pour une installation rapide sans accessoires supplémentaires
- Double anode en magnésium pour une protection accrue du réservoir
- Isolation en polyuréthane haute densité 0% CFC
- Interface numérique
- Durabilité accrue grâce à la technologie anticorrosion unique et brevetée O'pro Technology
Montage et installation
- Par les partenaires du groupement d'entreprises

Cuisine
Comme pour l'ensemble des produits que nous distribuons, nos cuisines sont livrées en direct usine. Nous collaborons avec le plus important fabriquant Européen. Il est présent dans tous les pays d'Europe centrale et en France avec ses 62 show room.
Loin des grandes surfaces de bricolage, notre cuisine est conçue et fabriquée avec de véritables meubles de grande qualité structurelle. Les caissons sont livrés totalement assemblés et prémontés. Les appareils électroménager issus des plus grandes marques
Meubles couleur gris perle:
Loin des grandes surfaces de bricolage, notre cuisine est conçue et fabriquée avec de véritables meubles de grande qualité structurelle. Les caissons sont livrés totalement assemblés et prémontés. Les appareils électroménager issus des plus grandes marques
Meubles couleur gris perle:
- 2 meubles bas 60 cm
- 2 meubles haut 60 cm
- Bac évier inox
- Mitigeur mécanique
- Bonde de vidage et siphon
- Plaque de cuisson induction
- Hotte d'aspiration à recyclage ou extérieur
- Réfrigérateur 95 L. sous plan de travail "Table top"
- Congélateur 16 L.
- Par les partenaires du groupement d'entreprises

PLANCHER:
- Lambourdes support
- Lames bois 18 m
- Isolation 50 mm
- Parquet flottant stratifié
- Madrier massif horizontal 34 mm .
- Membrane respirante
- Ossature et isolation 50 mm
- Membrane pare pluie
- Liteaux verticaux et horizontaux
- Bardage 18/20 mm extérieur
- Cloisons et porte salle de bains
Montage et installation
- Par les partenaires du groupement d'entreprises

TOITURE:
- Charpente et volige de toit
- Chevrons et film pare pluie
- Isolation 50 mm
- Couverture shingle
- Option bac acier tuiles
- Kit gouttières et descentes eau de pluie gris anthracite
- Par les partenaires du groupement d'entreprises
- Terrassement et tous mouvements de terre
- Maçonnerie et réseaux VRD extérieurs
- Votre dalle béton doit être parfaitement d'équerre, plate et de niveau. Dans le cas contraire la pose de l'EcoLodge ne sera pas possible.
RESEAUX EXTERIEURS EAU - ELECTRICITE - EAUX USEES - EAU PLUVIALE
Les réseaux extérieurs sont à la charge du client jusqu'à l'intérieur du Lodge
Arrivée d'eau;
- Le tube d'arrivée d'eau doit être enterré l'intérieur d'une gaine règlementaire à la profondeur hors gel et protégé par un treillis avertisseur bleu à 30 cm au dessus du tube.
- Une vanne d'arrêt et un robinet de vidange doivent permettre de vidanger l'installation en hiver, en cas de non occupation
- Le tube doit pénétrer à l'intérieur du Lodge comme indiqué sur la plan, et dépasser du plancher de minium 2 m
- Le câble électrique enterré doit être passé à l'intérieur d'une gaine réglementaire, et protégé par un treillis avertisseur jaune à 30 cm au dessus de la gaine.
- La section du câble doit être calculée pour la distance de raccordement et une puissance minimum de 6Kw, et protégée par un disjoncteur calibré.
- Le câble doit pénétrer à l'intérieur du lodge comme indiqué sur la plan, et dépasser du plancher de minium
- 2 m
- Les écoulement d'eaux usées doivent êtres installés aux emplacements précis indiqués sur le plan qui vous sera fournit et dépasser du plancher de 10 cm minimum
- Un regard de visite au départ du réseau est nécessaire sur la canalisation principale de diamètre 125 mm, pour pouvoir déboucher si besoin.
- Toutes les canalisations horizontales doivent respecter une pente minimum de 5 %
- Les eaux de pluie doivent êtres évacuées dans un réseau (S'il est disponible) ou dans un puits perdu
Option support au sol
Pour le support de votre Lodge, plusieurs solutions sont possibles, mais la plus simple, rapide et moins cher est le système sur plots, car ne nécessitant pas de connaissances particulières et sans béton.
Avec un minimum de compétences en bricolage, c'est à la portée de tout le monde. Voici comment procéder:
- S’assurer que le sol est solide et ferme, et ne soit pas composé d’une terre de remblai. Une étude de sol par un bureau technique agréé est nécessaire
- Décaper la terre végétale sur une épaisseur minium de 20 cm, en créant une plateforme la plus plate et de niveau possible et dépassant de chaque coté des dimensions du lodges de 20 cm minimum
- Poser un film géotextile sur la terre
- Poser un lit de gravier d’une épaisseur de 15/20 cm sur le géotextile. Tasser le plus possible
- Poser des dalles béton de 50X50 cm sur le gravier suivant les plans ci-contre
- Poser les plots réglables sur les dalles béton, au centre et les régler de façon à obtenir un parfait niveau dans tous les sens
- Poser la structure ossature bois sur les plots; La notice de montage indique tous les détails de pose
- En fonction des résultats de l'étude de sol, d’autres solutions de support au sol sont possibles, comme la dalle, les longrines ou les plots béton. Dans tous les cas le support doit: être parfaitement plat et de niveau. Il est nécessaire de respecter un retrait de 3 à 4 cm par rapport aux dimensions extérieures du lodge, afin que l’eau ne s’infiltre pas dessous. Il doit également être parfaitement stable avec une résistance calculée suivant une étude de sol par un bureau agréé
- Si vous avez opté pour un support béton, il doit être terminé au minimum 30 jours avant le montage du lodge
Les autres options

Fenêtres anthracites

Volets roulants alu blanc

Volets roul. alu anthracite

Chauffage - Clim
